ASAL ASSOCIATES LLC
ARCHITECTURE - PLANNING - INTERIOR DESIGN - SUSTAINABLE DESIGN
architecture - planning - interior design - sustainable design
ARCHITECTURE - PLANNING -M INTERIOR DESIGN - SUSTAINABLE DESIGN




SUITLAND ROAD ABOVE GROUND SUBWAY STATION, WASHINGTON, DC
CENTRAL MAINTENANCE FACILITY, DISTRICT OF COUMBIA WASTEWATER TREATMENT PLANT


RUMMEL, KLEPPER & KAHL (RKK) WAS SELECTED BY THE WASHINGTON METROPOLITAN AREA TRANSIT AUTHORITY, (WMATA) TO DESIGN THE BRANCH ROUTE, BRANCH AVENUE STORAGE YARD WHICH IS LOCATED AT THE SOUTHERN END OF THE GREEN LINE. THE REPAIR YARD CONTAINS SEVEN BUILDINGS. THE LARGEST BUILDING IS THE 64,000 S.F. TWO STORY CAR MAINTENANCE SHOP (CMNT SHOP). THE SECOND FLOOR OF THE CMNT SHOP CONTAINS THE YARD CONTROL TOWER WHICH IS CANTILEVERED FIVE FEET BEYOND THE FIRST FLOOR ON THREE SIDES IN ORDER TO PROVIDE CLEAR SIGHT LINES OF THE ENTIRE YARD. THE OTHER BUILDINGS IN THE YARD ARE THE TWO STORY 20,000 SF SYSTEMS MAINTENANCE BUILDING, THE CAR WASH BUILDING, THE TRACTION POWER SUB STATION BUILDING, THE WATER METER BUILDING, THE GATE HOUSE BUILDING AND THE CHEMICAL STORAGE BUILDING. AUSTIN L. SPRIGGS ASSOCIATES (ALSA) PROVIDED ALL OF THE ARCHITECTURAL DESIGN FOR ALL OF THE BUILDINGS FROM SCHEMATICS DESIGN THROUGH FINAL CONTRACT (BID) DOCUMENTS.
BRANCH ROUTE, BRANCH AVENUE STORAGE YARD CAR MAINTENANCE SHOP, PRINCE GEORGES' COUNTY, MARYLAND


FRONT ELEVATION OF THE BRANCH ROUTE, BRANCH AVENUE STORAGE YARD CAR MAINTENANCE SHOP, PRINCE GEORGE'S COUNTY, MARYLAND




INTERIOR AND EXTERIOR VIEWS OF THE BRANCH ROUTE BRANCH AVENUE STORAGE YARD CAR MAINTENANCE SHOP, GEORGE'S COUNTY,MD




INTERIOR AND EXTERIOR VIEWS OF THE BRANCH ROUTE, BRANCH AVENUE STORAGE YARD TRAIN WASH BUILDING, PRINCE GEORGE'S COUNTY, MARYLAND




TRACTION POWER SUBSTATION BUILDING, BRANCH ROUTE BRANCH AVENUE STORAGE YARD, PRINCE GEORGE'S COUNTY, MARYLAND
SYSTEMS MAINTENANCE BUILDING, BRANCH ROUTE, BRANCH AVENUE STORAGE YARD, PRINCE GEORGES' COUNTY, MARYLAND




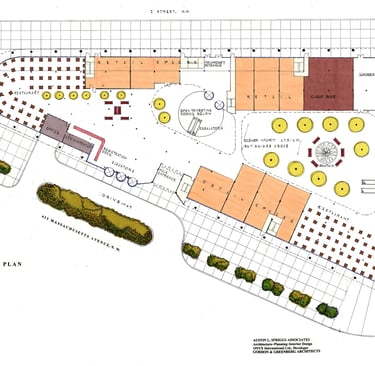
PROPOSED 1,000 ROOM 5 STAR HOTEL, 4TH & MASSACHUSETTS AVENUE, NW, WASHINGTON, DC, CIRCA 2002


NORTHERN METROBUS GARAGE BEFORE THE MAJOR RENOVATION AND CONSTRUCTION OF AN EMPLOYEE PARKING DECK ABOVE THE ON GRADE BUS PARKING


FIRST FLOOR OF PROPOSED 1,000 ROOM FIVE STAR HOTEL
THE SCHMATIC DESIGN FOR THE PROPOSED 1,000 ROOM FIVE STAR HOTEL TO BE LOCATED IN SQUARE 516S WHICH IS THE TRIANGULAR SITE BORDERED BY MASSACHUSETTS AVENUE, L STREET AND 5TH STREET, NW WAS DESIGNED BY AUSTIN L. SPRIGGS ASSOCIATES (ALSA). THIS WAS THE SAME LOCATION OF THE (ALSA) ARCHITECTURAL OFFICE AT 433 MASSACHUSETTS AVEUE, NW. IT WAS SUBMITTED BY THE ONYX CORPORATION WHICH WAS INCORPORATED IN VIRGINIA BY ALSA. THE DESIGN WAS ONE OF THE THREE SUBMISSIONS TO THE D.C. GOVERNMENT IN RESPONSE TO THE DC GOVERNMENT'S "REQUEST FOR PROPOSAL" FOR A HOTEL TO SUPPORT THE NEW DC CONVENTION CENTER. IN ADDITION TO DESIGNING THE HOTEL, ALSA ALSO TRIED BE THE DEVELOPER OF THE HOTEL. FINANCING FOR A HOTEL OF THIS MAGNITUDE IN WHAT WAS THEN AN UNDEVELOPED AREA WAS NOT AVAILABLE. WHILE WE WERE NOT SELECTED, IT IS ILLUSTRATIVE OF THE VISION, FORWARD THINKING AND GRIT OF THE ALSA TEAM. THE HOTEL WOULD HAVE CONTAINED BELOW GRADE MEETING ROOMS, A GROUND FLOOR WITH RESTAURANTS, TEN FLOORS OF HOTEL ROOMS AND AN ATRIUM THAT WOULD HAVE EXTENDED FROM THE FIRST FLOOR UP TO THE SKYLIGHTED ROOF ABOVE THE 11th FLOOR.


RENDERING OF THE COMPLETELY RENOVATED AND EXPANDED NORTHERN BUS GARAGE WHICH INCLUDED THE CONSTRUCTION OF AN EMPLOYEE PARKING DECK OVER THE ON GRADE BUS PARKING AREA. THE RALPH M. PARSONS COMPANY PROVIDED ENGINEERING DESIGN AS OUR SUBCONSULTANT FOR THIS PROJECT
11TH FLOOR CONTAINING HOTEL ROOMS AND DINING FACILITIES




RENDERING OF COLEMAN BRIDGE SHOWING THE TWO SWING SPAN SECTIONS, YORKTOWN, VIRGINIA
`BUILT COLEMAN BRIDGE SHOWING THE BRIDGE CONTROL HOUSE ABOVE THE BRIDGE AND THE TWO SWING SPAN SECTIONS, YORKTOWN, VIRGINIA


COLEMAN BRIDGE OFFICE BUILDING AND TOLL PLAZA, YORKTOWN, VIRGINIA




COLEMAN BRIDGE ADMINISTRATION BUILDING - MAIN ENTRANCE
COLEMAN BRIDGE ADMINISTRATION BUILDING AND TOLL PLAZA
THE GEORGE P. COLEMAN BRIDGE REPLACEMENT PROJECT WAS ONE OF THE WINNERS OF THE TRANSPORTATION DESIGN NATIONAL AWARDS PROGRAM 2000 THAT WAS ADMINISTERED BY THE UNITED STATES TRANSPORTATION DEPARTMENT. IT WAS ALSO THE WINNER OF THE 1997 GRAND CONCEPTOR AWARD OF THE AMERICAN CONSULTING ENGINEERING COUNCIL. THE REPLACEMENT BRIDGE RESTS ON THE ORIGINAL BRIDGE CAISSONS AND IS ONE OF THE LARGEST DOUBLE SWING SPAN BRIDGES IN THE WORLD. IN ADDITION TO PROVIDING ARCHITECTURAL DESIGN FOR THE ADMINISTRATION BUILDING, TOLL PLAZA AND BRIDGE CONTROL HOUSE, ALSA ALSO PROVIDED MECHANICAL AND ELECTICAL ENGINEERING DESIGN FOR THOSE PROJECT COMPONENTS.




WASHINGTON, DC NEW YORK AVENUE ABOVE GROUND SUBWAY STATION, UPPER LEVEL
WASHINGTON, DC NEW YORK AVENUE ABOVE GROUND SUBWAY STATION, STREET LEVEL
You didn’t come this far to stop




ANGELA SPRIGGS WITH THE SLATTERY/SKANSKA CONSTRUCTION TEAM - NEW YORK AVENUE SUBWAY STATION
DISTRICT OF COLUMBIA GEORGIA AVENUE, NW UNDERGROUND SUBWAY STATION, GEORGIA AVENUE ENTRANCE


WASHINGTON, DC NEW YORK AVENUE SUBWAY STATION SECOND STREET, NW ENTRANCE




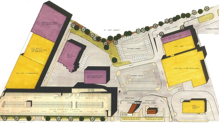
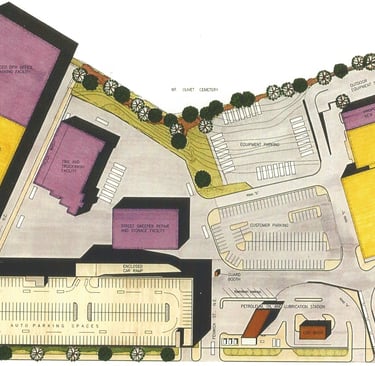
WEST VIRGINIA AVENUE CAMPUS MASTER PLAN FOR THE DISTRICT OF COLUMBIA FLEET MANAGEMENT ADMINISTRATION. THE MASTER PLAN AT GRADE LEVEL INCLUDES THE PROPOSED TWO STORY $25,000,000.00 PACKER STORAGE BUILDING ON WEST VIRGINIA AVENUE, NE.
WEST VIRGINIA AVENUE CAMPUS MASTER PLAN FOR THE DISTRICT OF COLUMBIA FLEETMANAGEMENT ADMINISTRATION. THE ROOF LEVEL MASTER PLAN SHOWS AUTOMOBILE ROOFTOP PARKING ON THE ROOF OF THE PROPOSED TWO STORY PACKER STORAGE BUILDING, ON THE ROOF OF A PROPOSED OFFICE BUILDING, AND ALSO, AERIAL PARKING OVER 15TH STREET WHICH WOULD PROVIDE CONTIGUOUS PARKING FOR APPROXIMATELY 300 VEHICULES.




YEAR 2000, PRESIDENTAL INAUGURAL REVIEWING STAND FOR THE INAUGURATION OF PESIDENT GEORGE BUSH. AFTER THE 9/11 TERROR ATTACKS, THE REVIEWING STAND WAS REDESIGNED BY ALSA. THE REDESIGN INCLUDED THE COMPLETE ENCLOSURE OF THE INAUGURAL STAND WITH PROTECTIVE GLAZING AND A HEATING SYSTEM.


PROPOSED PHYSICS BUILDING, HOWARD UNIVERSITY, WASHINGTON, DC, CIRCA 1985
PROPOSED NINE STORY PHYSICS BUILDING IS SIMILAR TO CURRENT UNIVERSITY BUILDINGS AND OTHER FACILITIES THROUGHOUT ACADEMIA WHICH ARE DESIGNATED AS "STEM" FACILITIES THAT EMPHASIZE SCIENCE, TECHNOLOGY, ENGINEERING AND MATHEMATICS




CLINICAL SKILLS CENTER, COLLEGE OF MEDICINE, HOWARD UNIVERSITY, WASHINGTON, DC ,- THIS IS A SPECIALIZED TEACHING FACLITY FOR SENIOR MEDICAL STUDENTS. THE FACILITY CONTAINS A LARGE CONFERENCE/MEETING ROOM WITH VIRTUAL AND INTERACTIVE MEDIA COMPONENTS, TEN TEACHING EXAMINATION ROOMS, A RECEPTION AREA AND TWO FACULTY MONITORING ROOMS WHERE STUDENT ACTIVITIES CAN BE REMOTIVELY OBSERVED.






INTERIOR VIEWS OF THE CULINARY ARTS SUITE, ROOSEVELT SENIOR HIGH SCHOOL, WASHINGTON, DC
TOILET RENOVATION FOR THE COLLEGE OF MEDICINE, HOWARD UNIVERSITY, WASHINGTON, DC




IMPERIAL GARDEN CHINESE RESTAURANT WITH OPEN AND PRIVATE DINING, GULF RESTON COMPLEX CONFERENCE CENTER, RESTON VA,


FLOOR PLAN, MEDICAL FACILITY, DISTRICT OF COLUMBIA DEPARTMENT OF CORRECTIONS, LORTON, VIRGINIA




KIRK DIVISION BUS GARAGE & SERVICING FACILITY, BALTIMORE, MARYLAND




LETTERS OF COMMENDATION AND APPRECIATION FROM THE US NAVY FOR THE DESIGN OF THE RENOVATION FOR BUILDINGS 210 AND 157 AT THE WASHINGTON NAVY YARD. THE TWO WORLD WAR II MUNITIONS BUILDINGS CONTAIN 150,000 SQUARE FEET AND WILL BE THE NEW ADMINISTRATIVE HEADQUARTERS OF THE MILITARY SEALIFT COMMAND.




NEW BUS WASHING & MAINTENANCE FACILTY AND RENOVATION OF THE EXISTING WASHINGTON METROPOLITAN AREA TRANSIT AUTHORITY WESTERN METROBUS GARAGE FACILITY

.
Enhancing public spaces through thoughtful and inclusive design approaches.
Crafting buildings that stand the test of time and trends.
